High-Tech 80
Идеальное решение для постоянного проживания до 5 человек
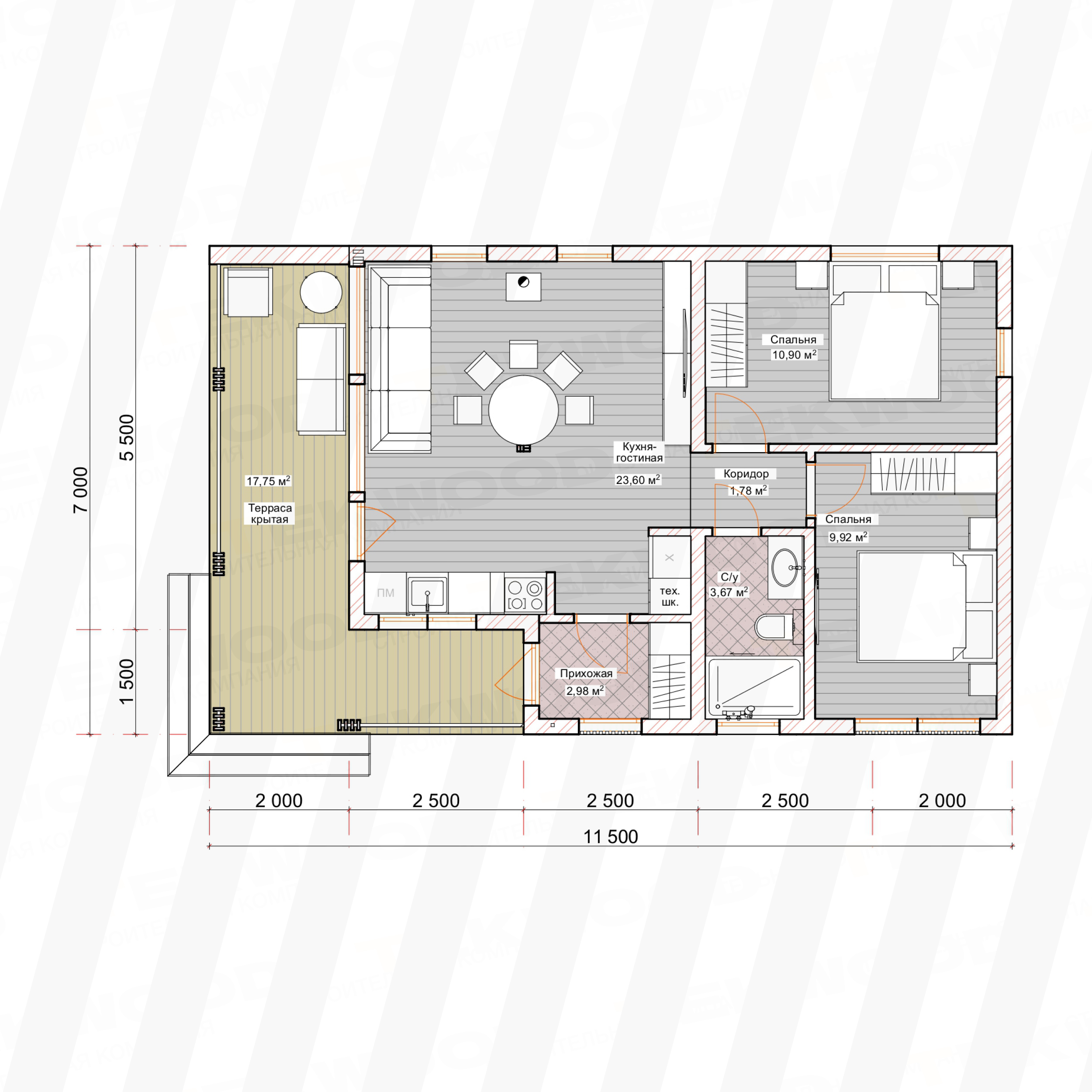
| Пятно застройки | 80,5 м2 |
| Площадь дома | 62,75 м2 |
| Площадь крытой террасы | 17,75 м2 |
| Высота потолков | 2.53 м |
| ШхДхВ (без открытой террасы) | 7000х11500х3645 мм |
6 500 000 ₽
Стиль Tekwood
Это не просто дом, это часть вашей жизни!
Базовая комплектация
Мы заботимся о вас и не пытаемся навязать "недодом" за низкую цену. Покупая дом даже в базовой комплектации вы получите теплый и надежный дом готовый к жизни из отличных материалов и с качественным монтажом.
| Каркас | Доска камерной сушки |
| Утеплитель | Пол и стены 150мм, потолок 190мм |
| Пароизоляция | Включено |
| Ветрозащита | Включено |
| Внешняя отделка | Фасадная доска с вентилируемым каналом |
| Внутренняя отделка | Включено |
| Кровля | ПВХ мембрана |
| Финишное покрытие пола | Включено |
| Окна | Энергоэффективные теплые ПВХ |
| Освещение | Включено (middle class) |
| Электрические коммуникации | Включено |
| Сантехнические коммуникации | Включено |
| Крытая терраса/крыльцо | Включено |
| Входные и межкомнатные двери | Включено |
| Слив воды с крыши | Включено |
| Защита от грызунов | Включено |
| Сборка на участке | Включено |
| Теплый пол | Опционально |
| Вентиляция | Приточные клапана, вытяжка в санузле |
| Проходные гильзы под кондиционер и канализацию | Включено |
* Дополнительные опции и изменения проекта подбираются индивидуально — с учетом ваших задач, участка и бюджета
Проекты
Уникальные и проработанные до мельчайших деталей
Не нашли подходящий проект?
Разработаем индивидуальный проект бесплатно!
АЭРОДВЕРЬ ПРОТИВ МОДУЛЬНОГО ДОМА
В видео делимся, как проходит проверка дома, какие данные она даёт и почему это важно
Что такое утепление ППУ?
Расскажем Вам о технологии утепления модульного дома пенополиуретаном
Приглашаем посетить наше производство!
Адрес производства: Челябинск, Производственная 4а/2 (Только по предварительной записи)